安亭新镇一期收官之作,约0.36容积率,「掌心湖·原舍」已取证,将于12月2日开启认购。项目将推出建面约180-360㎡大平层、叠加、合院,均价仅约5.04万/㎡,总价约800万起。本次推出的户型包括平层、叠…
与上海青浦兰生学校一街之隔安联·湖山悦已取证,将于12.3认购建面约88-98㎡三房小高层洋房建面约106-132㎡5层叠加样板间已开放
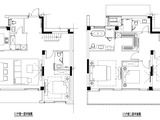
普陀内中环新俞里已经取证认购时间:11月30日-12月4日主推建面约120-241㎡3-5房,共计240套,均价约10.78万/㎡。附全套一房一价表:官宣户型图如下:附室内装修效果图:…
有业内人士认为,“第三支箭”快速发射,或将为房地产行业注入较大规模的增量资金和资产,促进行业平稳健康发展。在短短20天时间内,政策端“三箭齐发”强势托底,具有较强的信号意义,大幅提振各方的信心。看好全行业的信用复苏以及在因城施策空间逐步打开下